
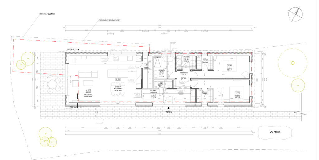
Design & Execution Project / 126 m² usable area / single storey / energy class A0
Project team: Ofir Albag, Martin Huba
A reconstruction of an existing house in the historic town of Veľký Šariš, this project revitalizes the original volume and position with a contemporary architectural language.
A simple gable roof, stone cladding, and copper-anthracite metal covering create a compact, timeless form rooted in its natural surroundings.
Designed for a four-member family, the house offers a barrier-free layout, high energy efficiency, and a heating system powered by an air-to-water heat pump.

The interior blends raw materials – concrete, wood, textured glass – with soft light and balanced tones.
Outdoors, a continuous stone façade and covered terraces form a calm, monolithic presence that comes alive at dusk under warm architectural lighting.





©albaghuba