
Design & Execution Project , Project management / 3 163, 79 m² net floor area / 7 floors / 48 units / energy class A0
Project team: Ofir Albag, Martin Huba
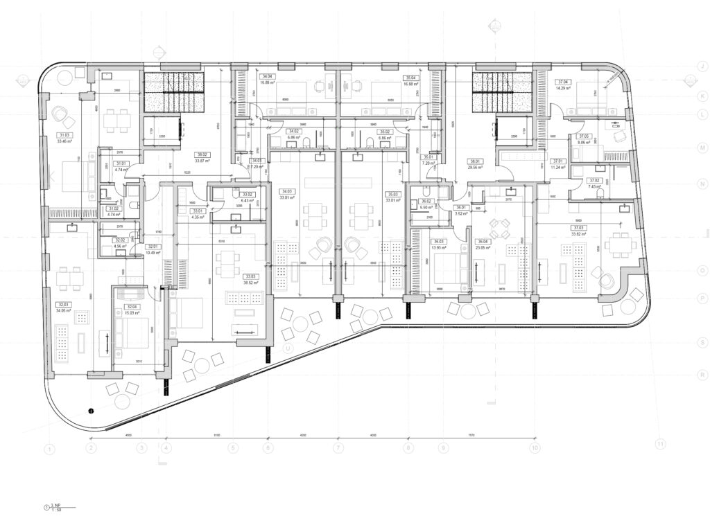
Terrace view residence is a new residential building designed for a private client as a new construction project in Slovakia – seven-storey residential building with stepped terraces, balanced façade rhythm, and clear horizontal composition. Currently in the process of obtaining a building permit.
It reinterprets collective living through a composition of clear volumes, stepped terraces, and rhythmic façades. The seven-storey structure combines compact and spacious apartments in a balanced layout emphasizing daylight, proportion, and calm geometry.

The upper floors recede to create generous terraces that dissolve the mass and open panoramic views, while the ground floor establishes a transparent, active relationship with the public space.
Defined by refined horizontality and measured repetition, the building expresses a quiet monumentality—rational, luminous, and human in scale.
©albaghuba